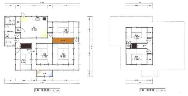
西条市丹原町古田の中古一戸建て
価格
1280
万円
間取り
6DK
面積
149.11㎡
所在階
-