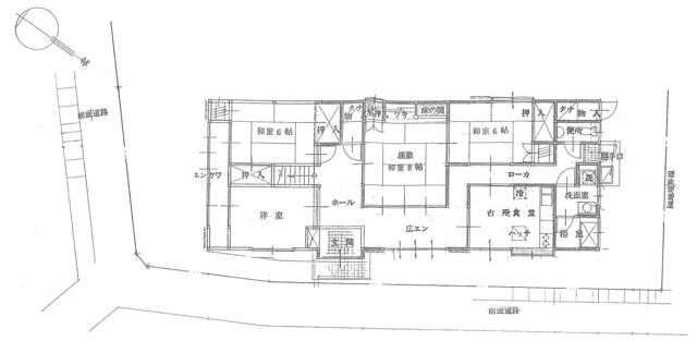
今治市菊間町佐方の中古一戸建て
価格
295
万円
間取り
6DK
面積
151.54㎡
所在階
-
昭和63年増築部分
昭和53年築1階部分・63年増築部分
昭和53年築2階建部分