松山市東方町の中古一戸建て
価格
1050
万円
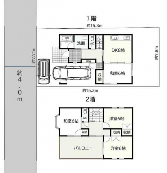
間取り
4DK
面積
93.86㎡
所在階
-