松山市西石井6丁目の中古一戸建て
価格
3980
万円
間取り
3LDK
面積
211.44㎡
所在階
-
外観1
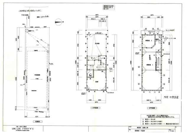
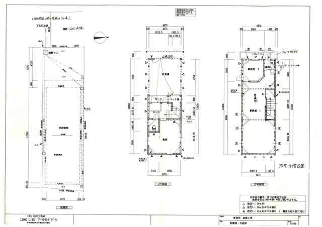
家屋番号:29番5 平面図(併用住宅)
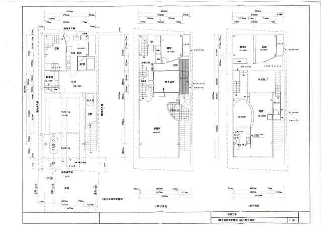
家屋番号:29番13 平面図(事務所)
外観2
外観3
外観4