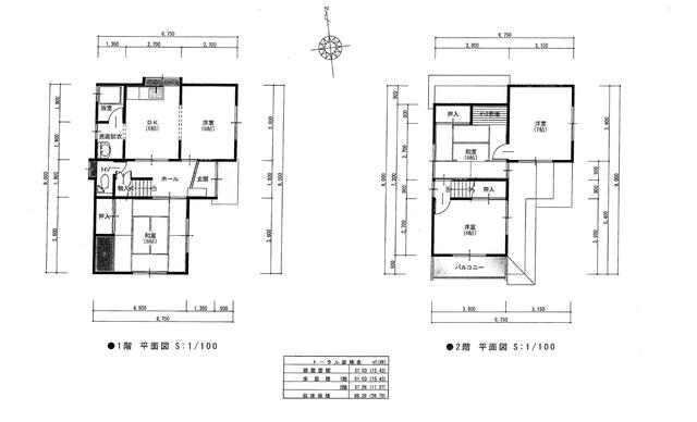
松山市西石井2丁目の中古一戸建て
価格
1250
万円
間取り
5DK
面積
76.95㎡
所在階
-