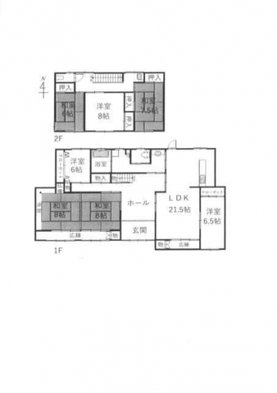
東温市田窪の中古一戸建て
価格
6500
万円
間取り
7LDK
面積
218.32㎡
所在階
-