ダイアパレスロイヤル持田
価格
10.5
万円
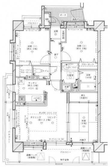
間取り
3LDK
面積
75.48㎡
所在階
7階
間取り
洗濯置場&収納
インターホン