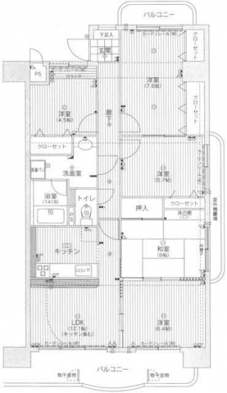
サントノーレ石手
価格
10.5
万円
間取り
5LDK
面積
95.34㎡
所在階
4階
間取り