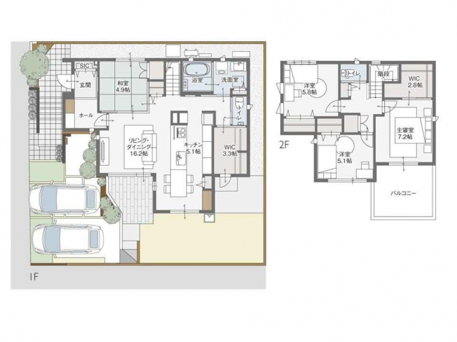
松山市南久米町の中古一戸建て
価格
4180
万円
間取り
4LDK
面積
116.78㎡
所在階
-
間取り