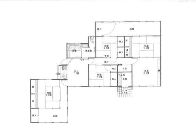
新居浜市中村3丁目の中古一戸建て
価格
400
万円
間取り
5DK
面積
113.55㎡
所在階
-