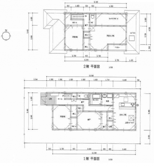
松山市 北井門 2階建て中古住宅
価格
2098
万円
間取り
4LDK
面積
116.50㎡
所在階
-