友澤住宅
価格
3.5
万円
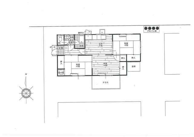
間取り
3DK
面積
61.37㎡
所在階
-