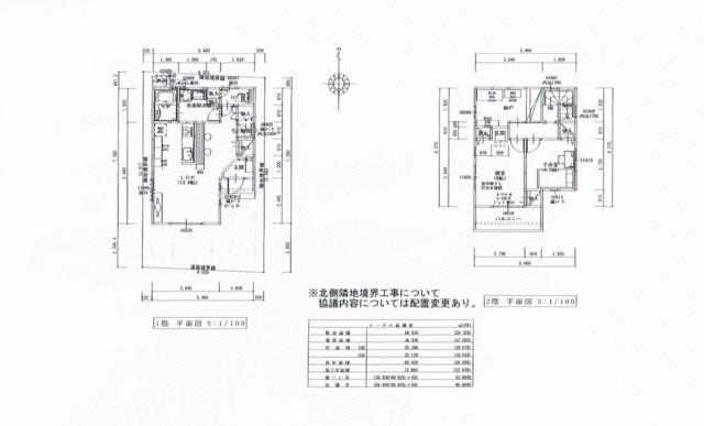
松山市松ノ木1丁目の中古一戸建て
価格
1280
万円
間取り
2SLDK
面積
68.42㎡
所在階
-