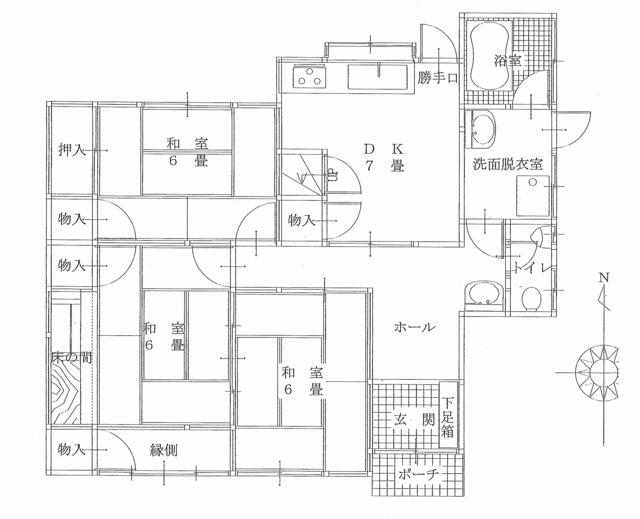
松山市鴨之池の一戸建て
価格
4.5
万円
間取り
3DK
面積
79.34㎡
所在階
-