スペルビア勝山
価格
7.6
万円
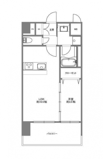
間取り
1LDK
面積
32.89㎡
所在階
3階
間取り