アルファスマート愛大医学部前
価格
2450
万円
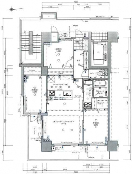
間取り
3LDK
面積
80.41㎡
所在階
10階
間取り