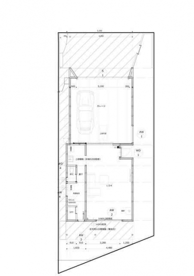
松山市余戸南5丁目の中古一戸建て
価格
3700
万円
間取り
1LDK
面積
82.44㎡
所在階
-