久保ビル
価格
49.5
万円
面積
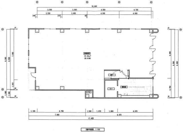
131.92㎡
所在階
2階
間取り
いよてつ高島屋まで374m
松山中央郵便局まで759m
松山市役所まで622m
松山市民会館まで463m
河原医療大学校まで43m