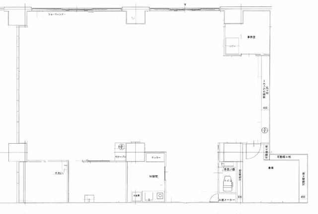
エスト・ソレイユ紺屋町
価格
1680
万円
面積
154.29㎡
所在階
1階
間取り
店舗前
建物エントランス