ディアタウン越智2丁目№1(1号地)
価格
3399
万円
間取り
3LDK
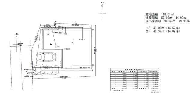
面積
94.39㎡
所在階
-