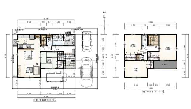
ディアタウン北斎院町№5
価格
3199
万円
間取り
4LDK
面積
96.88㎡
所在階
-