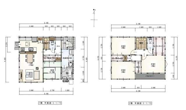
ディアタウン南江戸三丁目№1
価格
3499
万円
間取り
4LDK
面積
100.19㎡
所在階
-