ディアタウン堀江町№7
価格
2899
万円
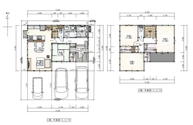
間取り
4LDK
面積
96.88㎡
所在階
-