松山市南梅本町の中古一戸建て
価格
2700
万円
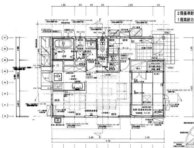
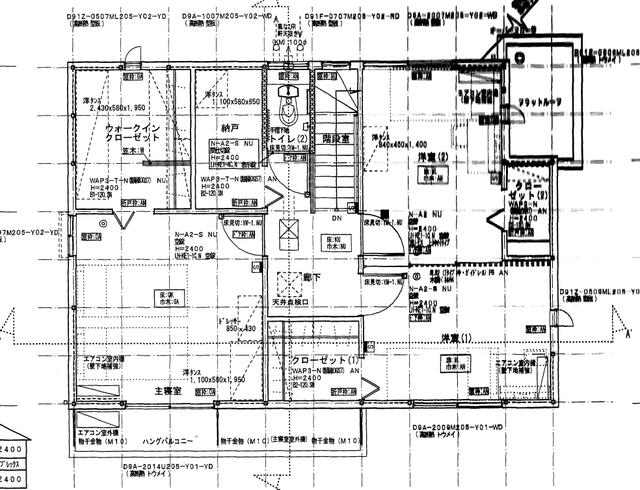
間取り
4SLDK
面積
114.48㎡
所在階
-