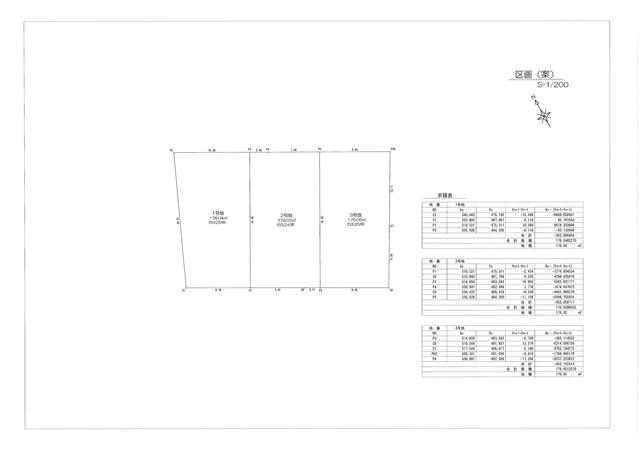
松山市北条辻の売地
価格
750
万円
所在階
-
土地図