束本2丁目
価格
730
万円
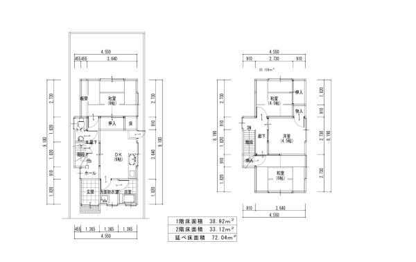
間取り
4DK
面積
72.04㎡
所在階
-
外観
間取図
外観
外観
前面道路含む現地写真
前面道路含む現地写真
フジ松末店まで468m
スーパー日東束本店まで607m
ファミリーマート松山松末店まで153m
くすりのレデイ松末店まで415m
慈生会松山城東病院まで301m
DiREX束本店まで667m
認定こども園ジャックと豆の木園枝松園まで329m
松山市立福音小学校まで994m