玉井住宅
価格
6.5
万円
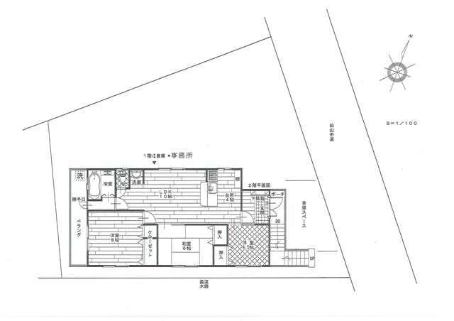
間取り
3LDK
面積
79.41㎡
所在階
2階
間取り