松山市溝辺町
価格
5280
万円
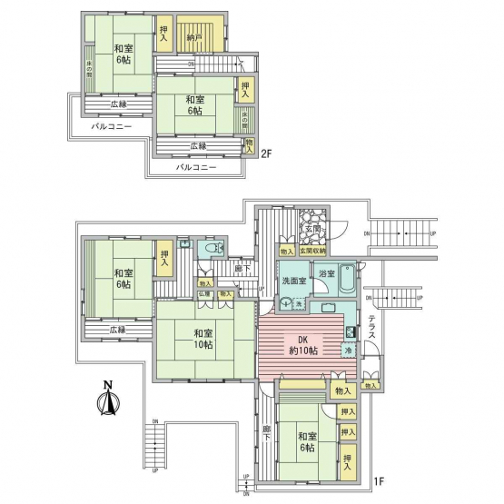
間取り
6DK
面積
247.07㎡
所在階
-
外観
間取り
RC造2階建て 間取り
木造2階建て 間取り
敷地図
ローソン松山石手1丁目店まで550m
セブンスター石手店まで550m
くすりのレデイ道後石手店まで946m
医療法人友朋会栗林病院まで377m
認定こども園育英幼稚園まで576m