ドミール道後
価格
500
万円
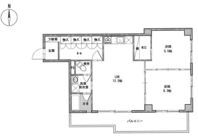
間取り
2LDK
面積
62.03㎡
所在階
3階
間取り