ライオンズマンション宮西弐番館
価格
3.8
万円
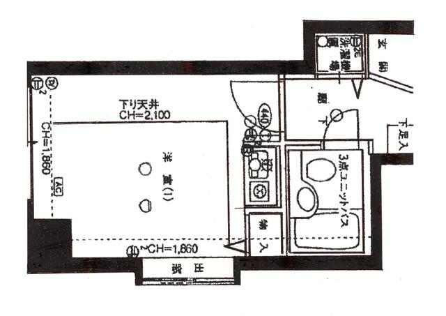
間取り
1R
面積
20.41㎡
所在階
2階
間取り