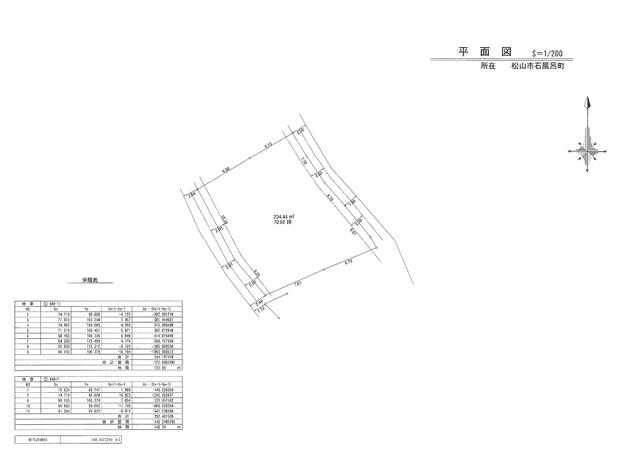
松山市石風呂町の売地
価格
825
万円
所在階
-
土地図