松山市石手5丁目の中古マンション
価格
1450
万円
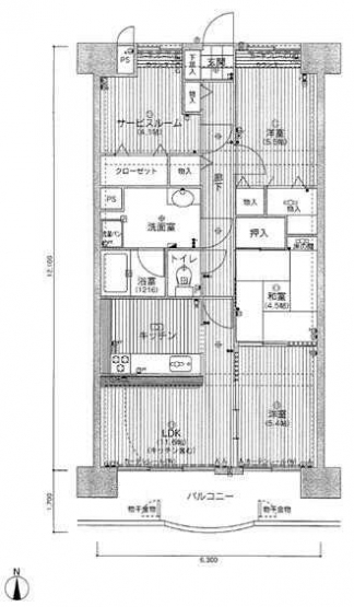
間取り
3SLDK
面積
73.78㎡
所在階
2階
間取り