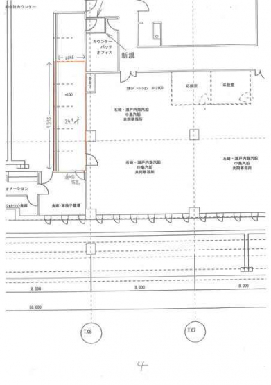
松山観光港ターミナル
価格
8.217
万円
面積
24.90㎡
所在階
1階
間取り