松山市空港通7丁目の中古一戸建て
価格
1500
万円
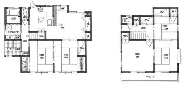
間取り
5LDK
面積
106.73㎡
所在階
-
mac富久店まで513m
Seria富久店まで513m
松山市立さくら小学校まで979m