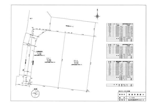
松山市北梅本町の売地
価格
1240
万円
所在階
-
土地図