ウェリス南持田緑彩苑
価格
3580
万円
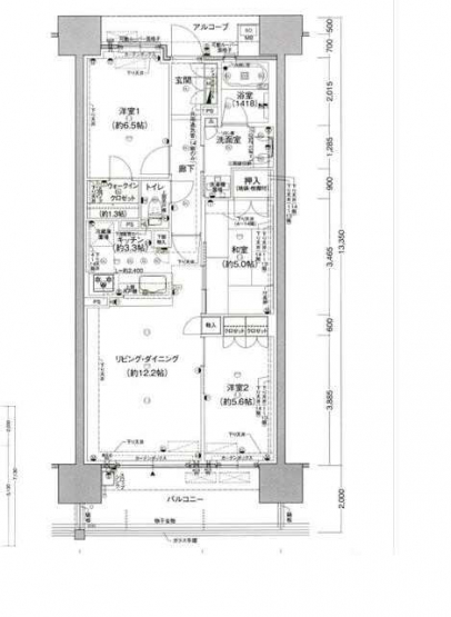
間取り
3LDK
面積
73.79㎡
所在階
9階
間取り