ディアタウン高岡町№14
価格
3099
万円
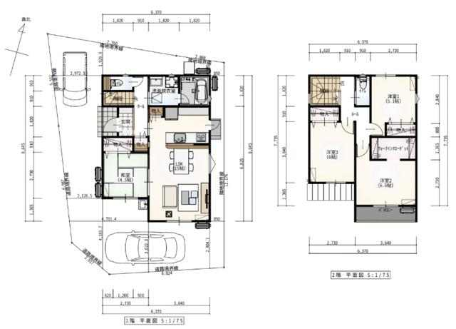
間取り
4LDK
面積
95.22㎡
所在階
-