西石井2丁目借家
価格
8
万円
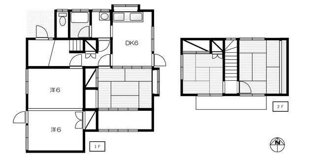
間取り
5DK
面積
97.87㎡
所在階
-