松山市宮西1丁目の中古マンション
価格
2250
万円
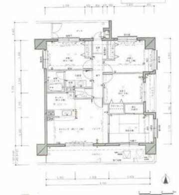
間取り
4LDK
面積
82.83㎡
所在階
7階
間取り