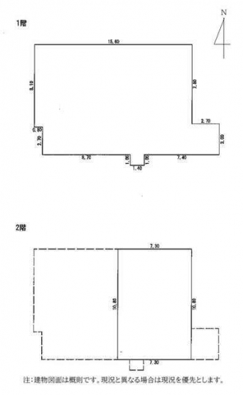
松山市恵原町倉庫
価格
1480
万円
面積
254.73㎡
所在階
-
間取り
二階室内
二階室内