ディアタウン余戸東二丁目№1
価格
3599
万円
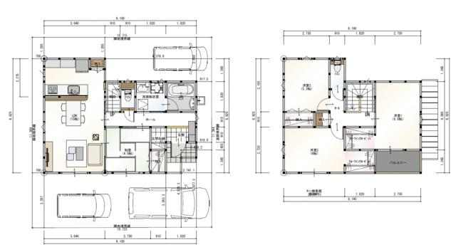
間取り
4LDK
面積
97.29㎡
所在階
-