サーパス三津浜駅通り
価格
2480
万円
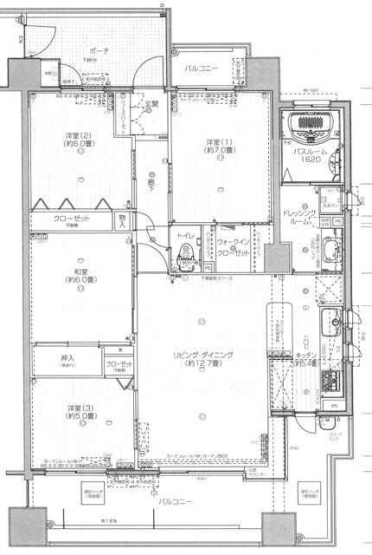
間取り
4LDK
面積
92.75㎡
所在階
6階
間取り
洗面台
洗濯パン
和室
ウォークインクローゼット
玄関ポーチ