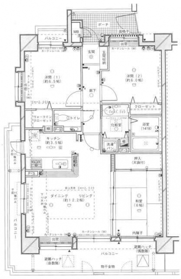
ダイアパレスロイヤル持田
価格
1850
万円
間取り
3LDK
面積
75.48㎡
所在階
7階
間取り