伊予郡砥部町宮内の中古一戸建て
価格
920
万円
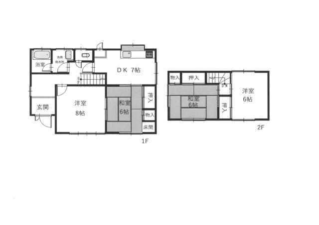
間取り
4DK
面積
88.44㎡
所在階
-