Renovacation清水町
価格
2100
万円
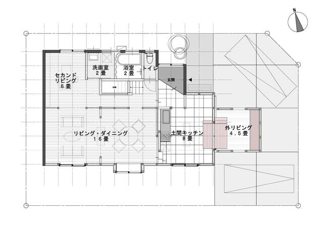
間取り
2LDK
面積
113.04㎡
所在階
-
新耐震基準の2階建てなので安心して暮らせますね♪
一目ぼれ間違いなし♪
この異空間を是非一度ご自身の目で確かめてください♪
この異空間を是非一度ご自身の目で確かめてください♪
お客様の日常が非日常に昇華する空間です♪
オシャレな空間で心を解きほぐす時間ができます♪
トイレも新品で気持ちいいですね♪
八畳の寝室ももちろんリノベーション済み♪