松山市今在家2丁目の中古一戸建て
価格
2680
万円
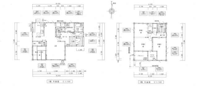
間取り
4LDK
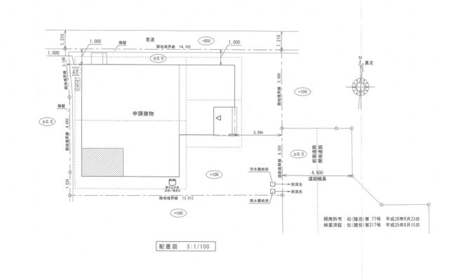
面積
102.27㎡
所在階
-