松山市東石井5丁目の店舗事務所
価格
66
万円
面積
363.95㎡
所在階
-
間取り
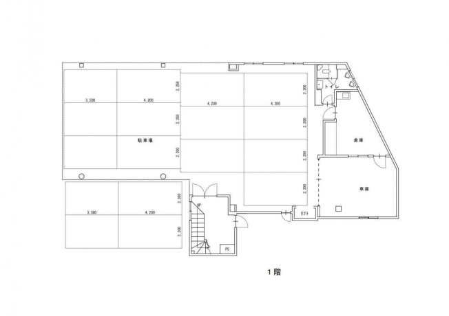
1階 間取図
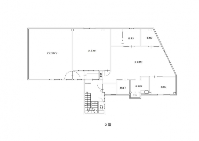
2階 間取図
3階 間取図
物件資料