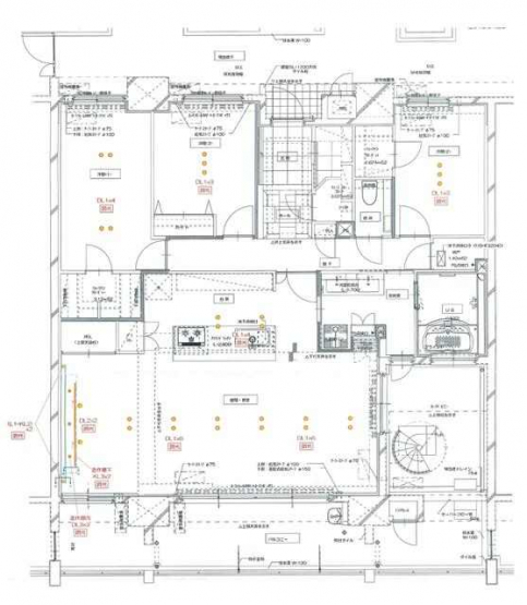
クレアホームズ松山三番町
価格
7700
万円
間取り
3LDK
面積
117.58㎡
所在階
14階
間取り