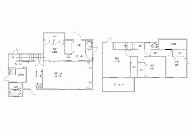
松山市南白水3丁目の中古一戸建て
価格
2380
万円
間取り
4SLDK
面積
107.64㎡
所在階
-