則之内事務所
価格
25
万円
面積
153.60㎡
所在階
-
★大型車両駐車出来ます敷地が広いので駐車場には困りません。元運送会社が使用していました。都市計画区域外の為、基本業種の制限がありません。当社には豊富な物件情報がありますので、ご希望の条件に沿う物件探しをお手伝い致します。
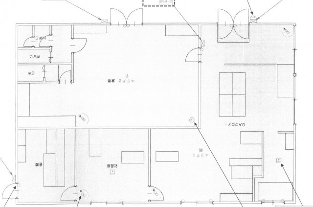
間取り
外観
外観
区画図
地図
赤枠がおおよその賃貸部分になります。
内装
内装
内装
収納
トイレ
男性用
トイレ
女性用
外観
風呂
シャワーブース有
収納
収納
内装
内装
トイレ
内装
キッチン